详细介绍
无机特级防火卷帘门
|
适用于不设自动喷淋系统的场合,节能,节省投资 |
|
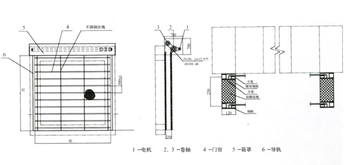
无机布防火卷帘门示意图
无机特级防火卷帘门实拍图 |

产品中心Product
成人向日葵视频下载安装门业(苏州)有限公司
联系人:朱经理
手机:17798596815
邮箱:zzy@seppes.com.cn
地址:江苏省苏州市吴中区走马塘路59号4幢
广泛使用于不设自动喷淋系统的场合,节能,节省投资。
无机特级防火卷帘门
|
适用于不设自动喷淋系统的场合,节能,节省投资 |
|
无机布防火卷帘门示意图
无机特级防火卷帘门实拍图 |
