欢迎进入快速门官网!
关键词:快速门、快速门厂家、向日葵视频色版下载安装、向日葵下载APP下载免费安卓版下载、成人向日葵视频下载安装门业
产品中心Product
成人向日葵视频下载安装门业(苏州)有限公司
联系人:朱经理
手机:17798596815
邮箱:zzy@seppes.com.cn
地址:江苏省苏州市吴中区走马塘路59号4幢
您现在的位置:首页-产品中心-铝合金电动卷帘门
无机特级防火卷帘门
适用于不设自动喷淋系统的场合,节能,节省投资 SERANG成人向日葵视频下载安装无机特级防火卷帘门,具有重量轻、减轻对建筑结构的负载;隔热性能好,价格低等优点。具有广阔的发展前景。 技术参数: 1、背火面平均温升≤140℃,单点最高温升≤180℃,耐火极限:≥3.0h; 2、启闭速度:2-9m/min; 3、漏烟量不大于0.2m3/m2min;
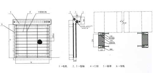
无机布防火卷帘门示意图
无机特级防火卷帘门实拍图